RECHERCHE

Maison jumelée à vendre 3 chambres à Boxhorn

  • Référence : 1391439
  • Type : Maison jumelée
  • Chambres : 3
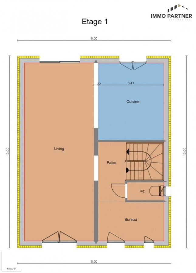
  • Surface habitable : +/-135,00 m2
  • Superficie terrain : +/- 7,5 Ares
  • Prix de vente : 411 500 €
Contact
Classe énergétique :
économe
A
énergivore
Classe d'isolation thermique : A
Emission de gaz à effet de serre (GES) : 
N_C

Description

BOXHORN ( Commune WINCRANGE )

Votre maison passive clés en mains, sur un terrain de 7.50 ares inclus dans le prix !

PRIX TERRAIN ET MAISON = 411 500 ' ttc tva 3%

Situation calme et agréable pour bâtir votre future maison.
_ Maison classe énergétique A
_ Prestations et matériaux de qualité
_ Garanties bancaire d'achèvement , prix ferme et définitif , délais garantis , garanties biennale et décennale.

Faites confiance à un constructeur présent depuis près de 30 ans et plus de 850 maisons bâties au Grand-Duché

FRAIS D'ARCHITECTE OFFERTS
ENERGIEPASS OFFERT
TERRASSE OFFERTE pour toute réservation du projet avant le 31 Août 2018
Ref agence :1391439

Caractéristiques

Intérieur

Salonoui
Cuisine ouverteoui

Sanitaires

Salle de bain1

Extérieur

Terrain7.50 ares
Terrasseoui
Jardinoui

Voiture

Garage1

Contactez-nous

+352 26 99 70 07

Vous
 
Champs obligatoire
En envoyant ce formulaire, j’accepte que mes informations soient enregistrées puis utilisées par notre agence afin de répondre à ma demande. Consultez notre pour connaître vos droits.
 

Localisation

Attention : Si l'adresse exacte n’est pas renseignée, le centre de la localité sera indiqué sur la carte.