AGENCE IMMOBILIERE IMMO PARTNER
37 Grand Rue
L-9905 Troisvierges
Luxembourg
  +352 26 99 70 07
Fax : +352 26 95 80 63

Wohnung zu verkaufen 2 Schlafzimmer in Wilwerdange

  • Referenz : 1391604
  • Typ : Wohnung
  • Schlafzimmer : 2
  • Wohnfläche : +/-80,00 m2
  • Grundstücksfläche : +/- 0,00 Ares
  • Lokalisierung : Wilwerdange
  • Kaufpreis : 382.079 €
  • neu
  • Energieklasse : N_C N_C
  • Emission de gaz à effet de serre (GES) : 
    N_C

Beschreibung

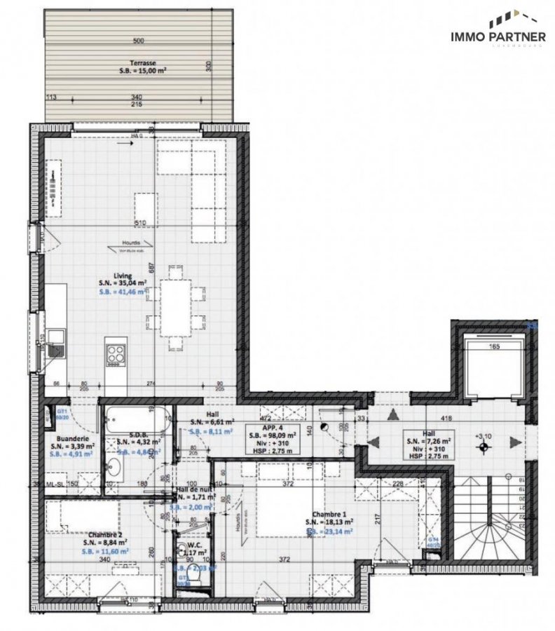
Immo Partner vous présente une nouvelle résidence à Wilwerdange, la résidence 'WAMPERSICHT II '. Cette résidence se compose de 8 appartements répartis sur 3 niveaux. L'appartement n°4 d'une surface habitable de 80 m² se situe au 1er étage et se compose comme suit: Un hall d'entrée de 6,61 m², séjour avec cuisine ouverte de 35,04 m², une buanderie de 3,39 m², 2 chambres de 8,84 et 18,13 m², salle de bain de 4,32 m² et WC séparé. Terrasse de 15,00 m² En outre, cet objet dispose d'une cave et deux emplacements de parking extérieurs. Prix de vente: 382.079,00 EUR TVAC 3% N'hésitez pas de nous contacter pour plus d'informations ! Les honoraires de l'agence seront à la charge du vendeur. Ref agence :1391604

Ausstattung

Innen

WohnzimmerJa

Sanitär

Badezimmer1
Separate Toilette1

Aussen

Terrasse15.00 m²

Auto

Parkplätze2

Andere

KellerJa
WaschraumJa

Heizung / Klimaanlage

WärmepumpeJa

Lokalisierung